• СкрытьПоказать больше

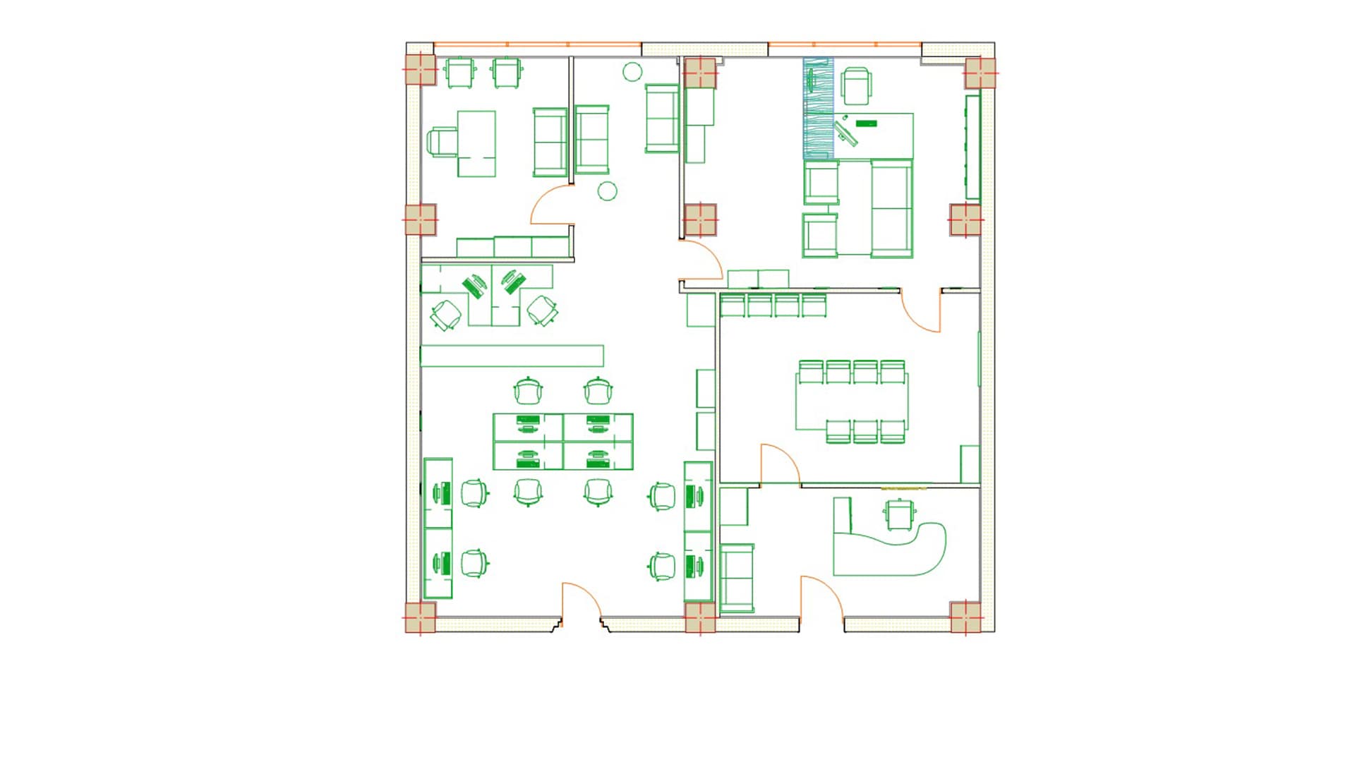
    Московский
    офис компании Caspel

    IT-компания CASPEL была основана в 2005 году. Специализация – внедрением новейших информационных технологий на территории Азербайджана. Уже 11 лет специалисты CASPEL занимаются внедрением IT-решений для крупного и среднего бизнеса. Однако постепенно к предлагаемым услугам и продуктам добавилось программирование, а сейчас CASPEL продвигает три новых проекта: IPTV, сотрудничество со стартапами и их экспертная оценка, расширение фиброоптических сетей и ADSL с ориентацией на частного клиента. CASPEL начиналась с интеграционных задач – комплексных программно-аппаратных систем, ориентированных на решение нетривиальных задач организации. За прошедшие годы штат компании вырос более чем в шесть раз – с 30 до 200 штатных специалистов.

  • СкрытьПоказать больше

    Московский
    офис компании Caspel

    IT-компания CASPEL была основана в 2005 году. Специализация – внедрением новейших информационных технологий на территории Азербайджана. Уже 11 лет специалисты CASPEL занимаются внедрением IT-решений для крупного и среднего бизнеса. Однако постепенно к предлагаемым услугам и продуктам добавилось программирование, а сейчас CASPEL продвигает три новых проекта: IPTV, сотрудничество со стартапами и их экспертная оценка, расширение фиброоптических сетей и ADSL с ориентацией на частного клиента. CASPEL начиналась с интеграционных задач – комплексных программно-аппаратных систем, ориентированных на решение нетривиальных задач организации. За прошедшие годы штат компании вырос более чем в шесть раз – с 30 до 200 штатных специалистов.

  • СкрытьПоказать больше

    Московский
    офис компании Caspel

    IT-компания CASPEL была основана в 2005 году. Специализация – внедрением новейших информационных технологий на территории Азербайджана. Уже 11 лет специалисты CASPEL занимаются внедрением IT-решений для крупного и среднего бизнеса. Однако постепенно к предлагаемым услугам и продуктам добавилось программирование, а сейчас CASPEL продвигает три новых проекта: IPTV, сотрудничество со стартапами и их экспертная оценка, расширение фиброоптических сетей и ADSL с ориентацией на частного клиента. CASPEL начиналась с интеграционных задач – комплексных программно-аппаратных систем, ориентированных на решение нетривиальных задач организации. За прошедшие годы штат компании вырос более чем в шесть раз – с 30 до 200 штатных специалистов.

  • СкрытьПоказать больше

    Московский
    офис компании Caspel

    IT-компания CASPEL была основана в 2005 году. Специализация – внедрением новейших информационных технологий на территории Азербайджана. Уже 11 лет специалисты CASPEL занимаются внедрением IT-решений для крупного и среднего бизнеса. Однако постепенно к предлагаемым услугам и продуктам добавилось программирование, а сейчас CASPEL продвигает три новых проекта: IPTV, сотрудничество со стартапами и их экспертная оценка, расширение фиброоптических сетей и ADSL с ориентацией на частного клиента. CASPEL начиналась с интеграционных задач – комплексных программно-аппаратных систем, ориентированных на решение нетривиальных задач организации. За прошедшие годы штат компании вырос более чем в шесть раз – с 30 до 200 штатных специалистов.

  • СкрытьПоказать больше

    Московский
    офис компании Caspel

    IT-компания CASPEL была основана в 2005 году. Специализация – внедрением новейших информационных технологий на территории Азербайджана. Уже 11 лет специалисты CASPEL занимаются внедрением IT-решений для крупного и среднего бизнеса. Однако постепенно к предлагаемым услугам и продуктам добавилось программирование, а сейчас CASPEL продвигает три новых проекта: IPTV, сотрудничество со стартапами и их экспертная оценка, расширение фиброоптических сетей и ADSL с ориентацией на частного клиента. CASPEL начиналась с интеграционных задач – комплексных программно-аппаратных систем, ориентированных на решение нетривиальных задач организации. За прошедшие годы штат компании вырос более чем в шесть раз – с 30 до 200 штатных специалистов.

  • СкрытьПоказать больше

    Московский
    офис компании Caspel

    IT-компания CASPEL была основана в 2005 году. Специализация – внедрением новейших информационных технологий на территории Азербайджана. Уже 11 лет специалисты CASPEL занимаются внедрением IT-решений для крупного и среднего бизнеса. Однако постепенно к предлагаемым услугам и продуктам добавилось программирование, а сейчас CASPEL продвигает три новых проекта: IPTV, сотрудничество со стартапами и их экспертная оценка, расширение фиброоптических сетей и ADSL с ориентацией на частного клиента. CASPEL начиналась с интеграционных задач – комплексных программно-аппаратных систем, ориентированных на решение нетривиальных задач организации. За прошедшие годы штат компании вырос более чем в шесть раз – с 30 до 200 штатных специалистов.

  • СкрытьПоказать больше

    Московский
    офис компании Caspel

    IT-компания CASPEL была основана в 2005 году. Специализация – внедрением новейших информационных технологий на территории Азербайджана. Уже 11 лет специалисты CASPEL занимаются внедрением IT-решений для крупного и среднего бизнеса. Однако постепенно к предлагаемым услугам и продуктам добавилось программирование, а сейчас CASPEL продвигает три новых проекта: IPTV, сотрудничество со стартапами и их экспертная оценка, расширение фиброоптических сетей и ADSL с ориентацией на частного клиента. CASPEL начиналась с интеграционных задач – комплексных программно-аппаратных систем, ориентированных на решение нетривиальных задач организации. За прошедшие годы штат компании вырос более чем в шесть раз – с 30 до 200 штатных специалистов.

  • СкрытьПоказать больше

    Московский
    офис компании Caspel

    IT-компания CASPEL была основана в 2005 году. Специализация – внедрением новейших информационных технологий на территории Азербайджана. Уже 11 лет специалисты CASPEL занимаются внедрением IT-решений для крупного и среднего бизнеса. Однако постепенно к предлагаемым услугам и продуктам добавилось программирование, а сейчас CASPEL продвигает три новых проекта: IPTV, сотрудничество со стартапами и их экспертная оценка, расширение фиброоптических сетей и ADSL с ориентацией на частного клиента. CASPEL начиналась с интеграционных задач – комплексных программно-аппаратных систем, ориентированных на решение нетривиальных задач организации. За прошедшие годы штат компании вырос более чем в шесть раз – с 30 до 200 штатных специалистов.

  • СкрытьПоказать больше

    Московский
    офис компании Caspel

    IT-компания CASPEL была основана в 2005 году. Специализация – внедрением новейших информационных технологий на территории Азербайджана. Уже 11 лет специалисты CASPEL занимаются внедрением IT-решений для крупного и среднего бизнеса. Однако постепенно к предлагаемым услугам и продуктам добавилось программирование, а сейчас CASPEL продвигает три новых проекта: IPTV, сотрудничество со стартапами и их экспертная оценка, расширение фиброоптических сетей и ADSL с ориентацией на частного клиента. CASPEL начиналась с интеграционных задач – комплексных программно-аппаратных систем, ориентированных на решение нетривиальных задач организации. За прошедшие годы штат компании вырос более чем в шесть раз – с 30 до 200 штатных специалистов.

  • СкрытьПоказать больше

    Московский
    офис компании Caspel

    IT-компания CASPEL была основана в 2005 году. Специализация – внедрением новейших информационных технологий на территории Азербайджана. Уже 11 лет специалисты CASPEL занимаются внедрением IT-решений для крупного и среднего бизнеса. Однако постепенно к предлагаемым услугам и продуктам добавилось программирование, а сейчас CASPEL продвигает три новых проекта: IPTV, сотрудничество со стартапами и их экспертная оценка, расширение фиброоптических сетей и ADSL с ориентацией на частного клиента. CASPEL начиналась с интеграционных задач – комплексных программно-аппаратных систем, ориентированных на решение нетривиальных задач организации. За прошедшие годы штат компании вырос более чем в шесть раз – с 30 до 200 штатных специалистов.

  • СкрытьПоказать больше

    Московский
    офис компании Caspel

    IT-компания CASPEL была основана в 2005 году. Специализация – внедрением новейших информационных технологий на территории Азербайджана. Уже 11 лет специалисты CASPEL занимаются внедрением IT-решений для крупного и среднего бизнеса. Однако постепенно к предлагаемым услугам и продуктам добавилось программирование, а сейчас CASPEL продвигает три новых проекта: IPTV, сотрудничество со стартапами и их экспертная оценка, расширение фиброоптических сетей и ADSL с ориентацией на частного клиента. CASPEL начиналась с интеграционных задач – комплексных программно-аппаратных систем, ориентированных на решение нетривиальных задач организации. За прошедшие годы штат компании вырос более чем в шесть раз – с 30 до 200 штатных специалистов.

  • СкрытьПоказать больше

    Московский
    офис компании Caspel

    IT-компания CASPEL была основана в 2005 году. Специализация – внедрением новейших информационных технологий на территории Азербайджана. Уже 11 лет специалисты CASPEL занимаются внедрением IT-решений для крупного и среднего бизнеса. Однако постепенно к предлагаемым услугам и продуктам добавилось программирование, а сейчас CASPEL продвигает три новых проекта: IPTV, сотрудничество со стартапами и их экспертная оценка, расширение фиброоптических сетей и ADSL с ориентацией на частного клиента. CASPEL начиналась с интеграционных задач – комплексных программно-аппаратных систем, ориентированных на решение нетривиальных задач организации. За прошедшие годы штат компании вырос более чем в шесть раз – с 30 до 200 штатных специалистов.

  • СкрытьПоказать больше

    Московский
    офис компании Caspel

    IT-компания CASPEL была основана в 2005 году. Специализация – внедрением новейших информационных технологий на территории Азербайджана. Уже 11 лет специалисты CASPEL занимаются внедрением IT-решений для крупного и среднего бизнеса. Однако постепенно к предлагаемым услугам и продуктам добавилось программирование, а сейчас CASPEL продвигает три новых проекта: IPTV, сотрудничество со стартапами и их экспертная оценка, расширение фиброоптических сетей и ADSL с ориентацией на частного клиента. CASPEL начиналась с интеграционных задач – комплексных программно-аппаратных систем, ориентированных на решение нетривиальных задач организации. За прошедшие годы штат компании вырос более чем в шесть раз – с 30 до 200 штатных специалистов.